CHI TIẾT MẶT BẰNG TÒA GROVE A5 VÀ TÒA STRAIT A6- EATON PARK QUẬN 2
CBD SAIGON PROPERT xin cập nhật đến Quý Anh Chị Chi tiết mặt bằng TÒA A5 GROVE VÀ TÒA A6 STRAIT
Dự án căn hộ hạng sang Eaton Park Quận 2 quy mô 3,7 ha gồm 2 phân khu:
Phân khu 1: Tòa A1, A2, A3,A4
Phân khu 2: Tòa A5, A6
Như vậy Tòa A5- Grove,Tòa A6-Strait thuộc phân khu 2, Bố trí Tòa A5 view hướng về khu TDTT Nam Rạch Chiếc, Tòa A6 view hướng về trung tâm Q1 và Thủ Thiêm.Dự án Eaton Park -quận 2 được phát triển bởi Nhà Phát Triển Bất Động Sản số 1 Malaysia -Gamuda Land.
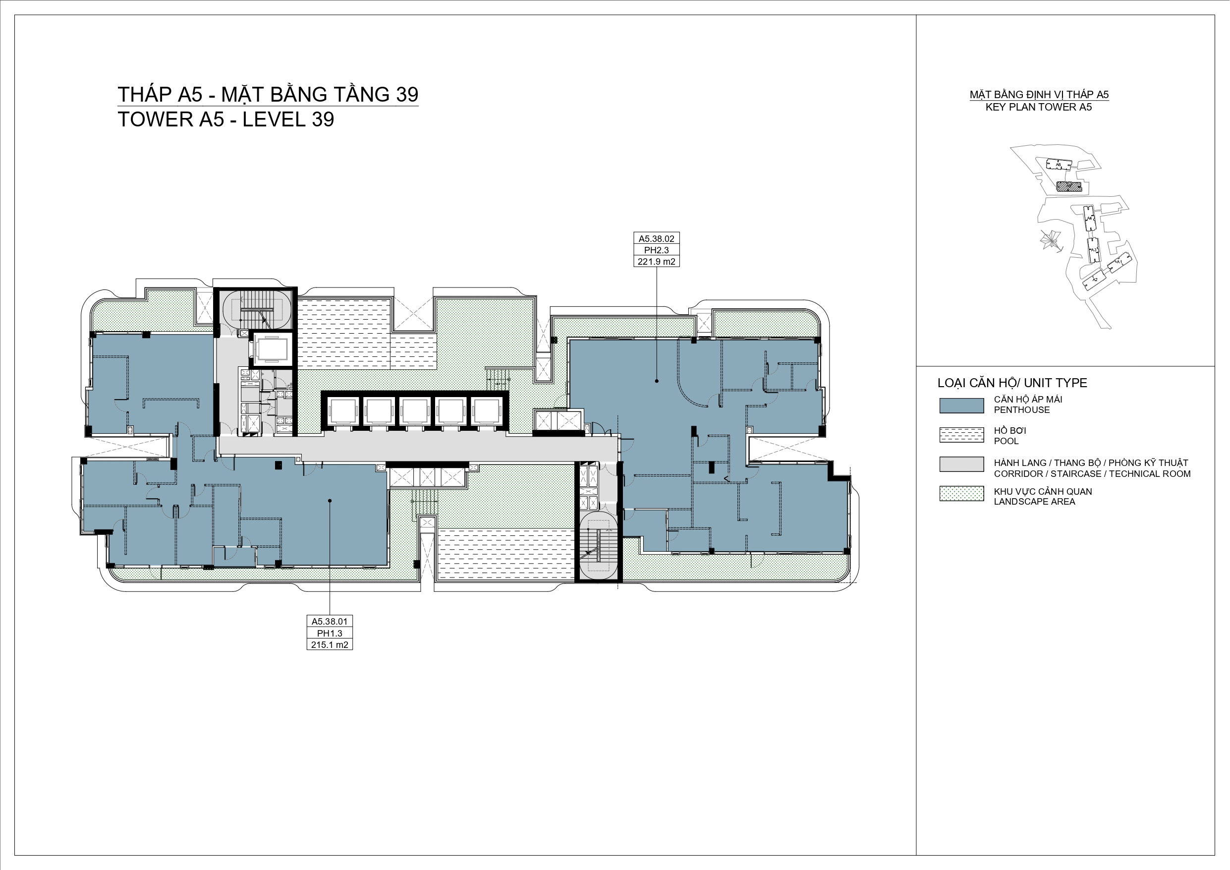
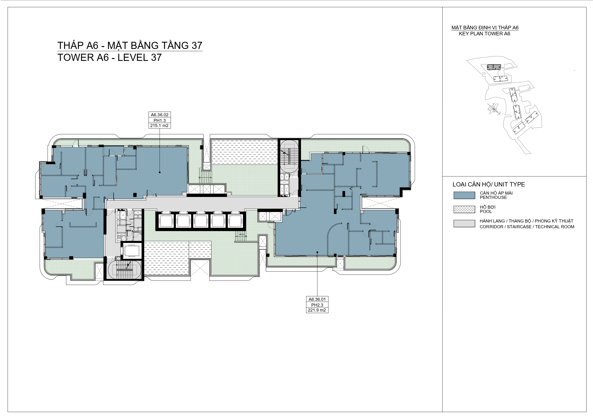
Tòa A5 Grove cao 39 tầng -số lượng 351 căn
Tòa A6 Strait cao 37 tầng -số lượng 322 căn
- Tối đa 10 căn 1 sàn
 - 5 Thang máy và 1 thang vận chuyển hàng
 - 100% cửa các căn hộ không đối nhau, đảm bảo riêng tư tuyệt đối
 - Thiết kế bo tròn góc các căn góc, không chỉ tăng thẩm mỹ mà còn mở rộng tầm view panorama, một ưu điểm ít dự án nào làm được
 - 2 Tầng hầm đậu xe, thông nhau giữa các tòa A5-A6
 - Tầng 1 và tầng 2 shophouse, Tiện ích cho cư dân bố trí tầng 3
 
MẶT BẰNG TÒA A5-GROVE
TẦNG 3
TẦNG 4-9
TẦNG 10-19
TẦNG 21-38
TẦNG 39
LAYOUT CHI TIẾT TỪNG LOẠI CĂN HỘ TÒA A5-GROVE VÀ TÒA A6-STRAIT
Loại căn 1 phòng ngủ
Loại căn 2 phòng ngủ
Loại căn 3 phòng ngủ
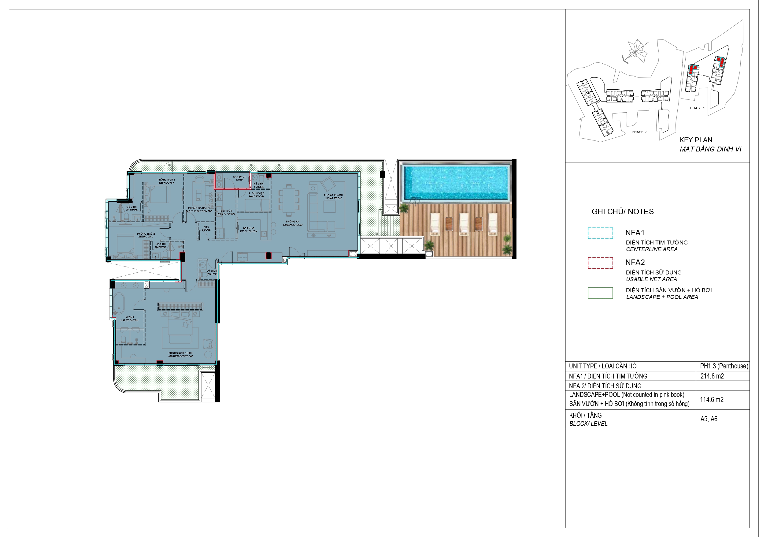
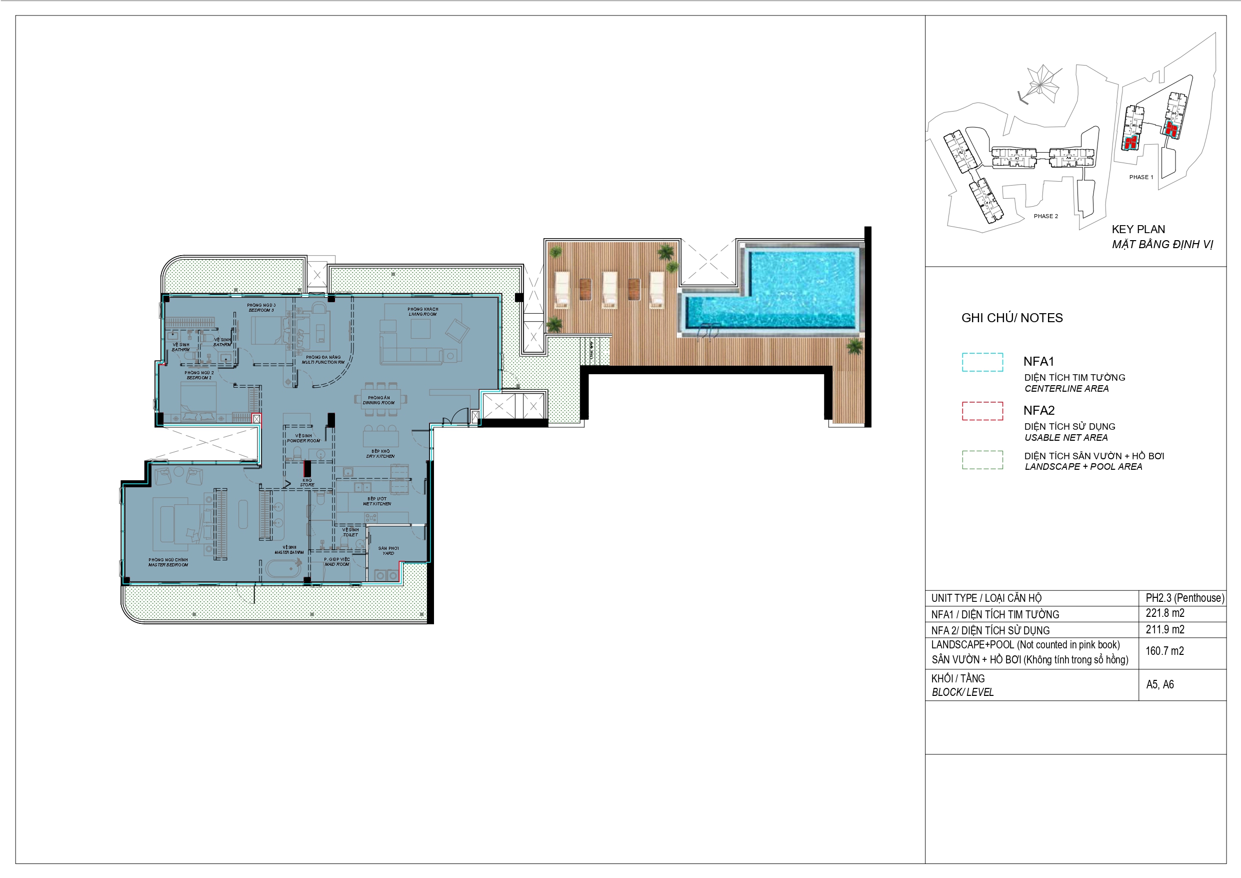
Penhouse
MẶT BẰNG TÒA A6-STRAIT
TẦNG 3
TẦNG 4-9
TẦNG 10-19
TẦNG 21-36
TẦNG 37
Trên đây là thông tin chi tiết về mặt bằng layout tầng và chi tiết căn hộ Tòa A5 Grove và Tòa A6 Strait dự án căn hộ hạng sang Eaton Park Quận 2 -Gamuda Land.
CBD Saigon Property Xin chân thành cảm ơn Quý Anh Chị đã xem hết nội dung bài viết, rất mong nhận được góp ý từ Quý Anh Chị để CBD Saigon Property ngày càng hoàn thiện hơn. Nếu có bất kỳ thiếu xót kính xin nhận được góp ý chân thành từ Quý Anh Chị ạ!
Mọi ý kiến đóng góp vui lòng liên hệ
Xem tiếp MẶT BẰNG TÒA ALPINE A1 VÀ TÒA FOREST A2 EATON PARK QUẬN 2 GAMUDA LAND
Xem tiếp MẶT BẰNG TÒA COVE A3 VÀ TÒA LAGOON A4 EATON PARK QUẬN 2 GAMUDA LAND

                                    
                    





































